A selection of graphic and set design work I created for the feature.

Bulit Set - Exterior House Rendering

Built Set - House Kitchen

Built Set - House Kitchen

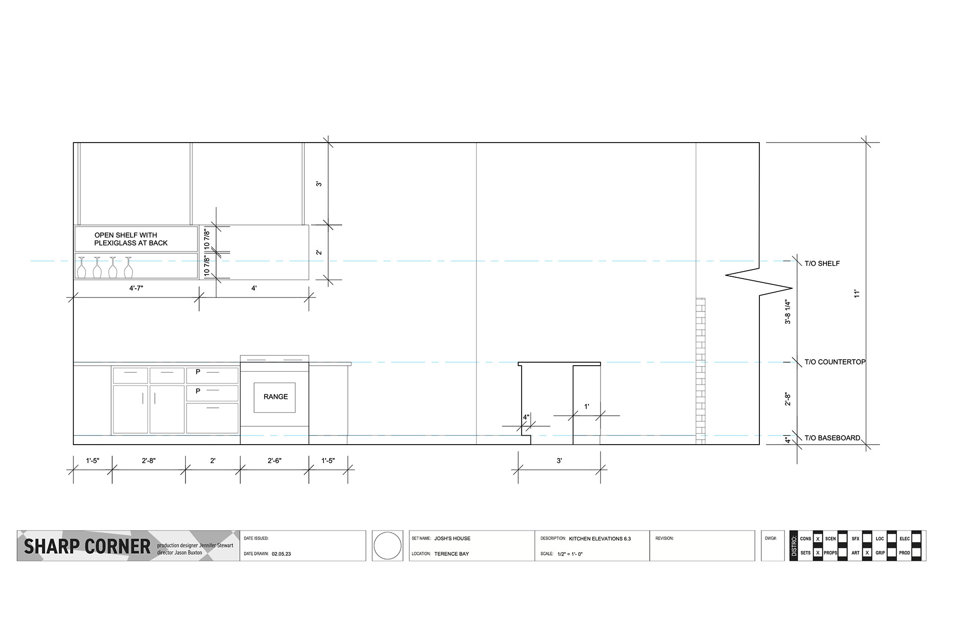
House Kitchen - Elevation

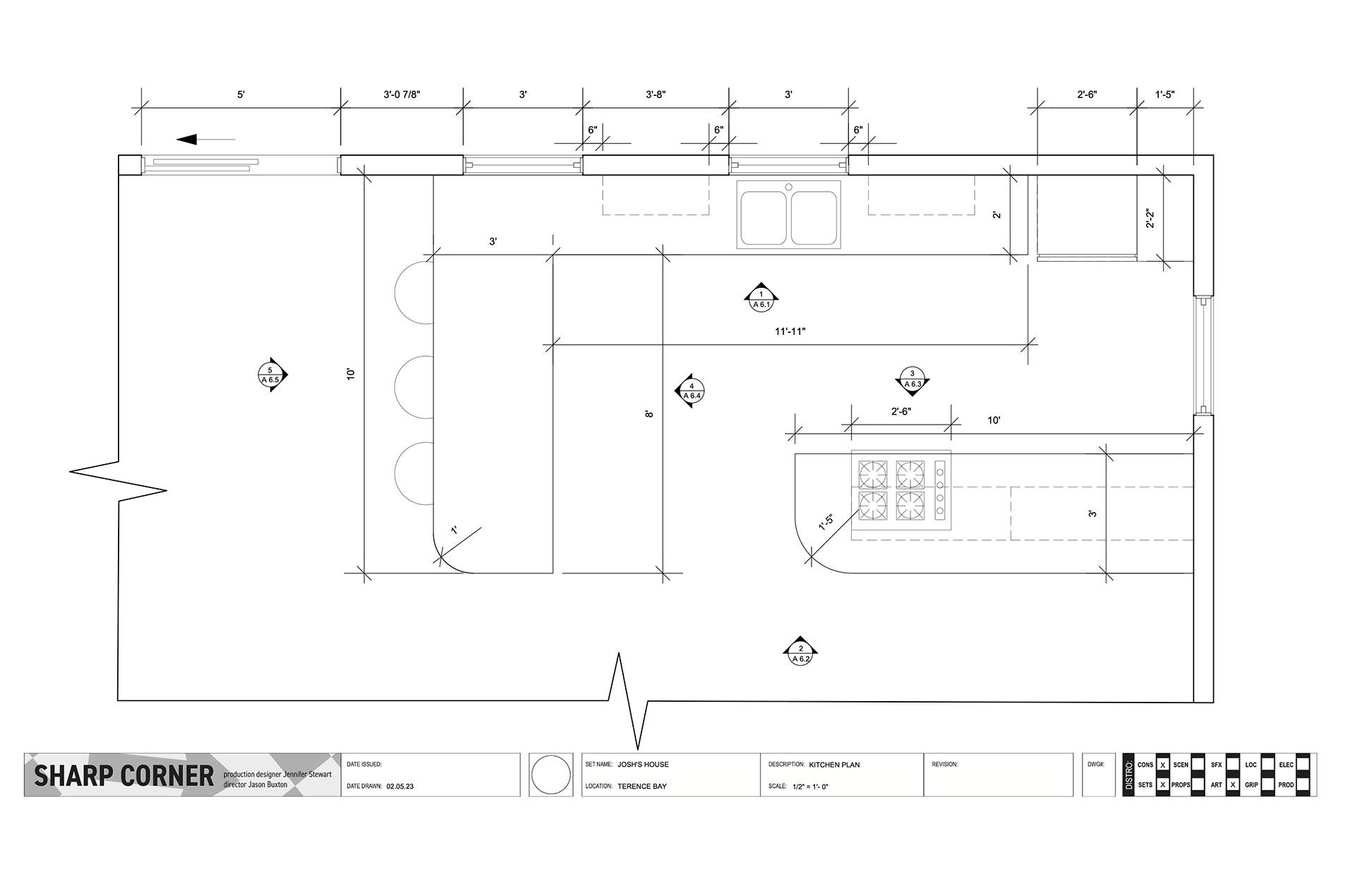
House Kitchen - Plan
House Kitchen - Plan
House Kitchen - Elevation
House Kitchen - Elevation

News on iPad Screen

iPad Screen - GFX

Waterfront Carnival

Waterfront Carnival

Waterfront Carnival - Stand Signage

Waterfront Carnival - Stand Signage

Josh's Credit Card

Doctor's Office

Doctor's Diplomas

Three Little Pigs Book

Three Little Pigs Book

Max's Montessori

Montessori Logo

Harbour City News

Harbour City News Logo

Grocery Store

Grocery Store - Pizza Boxes

Back to Top